產品介紹
歐標單粱橋式起重機是新一代的革新產品,性能優越,結構緊湊,凈空間尺寸小,能充分利用廠房的有效空間。充分考慮了客戶的需求,使客戶在使用過程中增加了安全性和舒適性。標準配置為小車變頻和大車變頻,使行車運行平穩、可靠,可根據客戶現場工況的需要配量起升變頻或雙葫蘆運行。起重量20T,跨度30米。

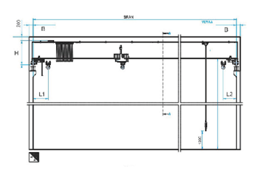
| 起重量 | 跨度 | 起升高度 | 工作級別 | 起升速度 | 基本尺寸(mm) | 小車自重 | 整機自重 | 軌道推薦 | 總功率 | 最大輪壓 | |||||
| t | m | m | GB | M/分 | H | B | L1 | L2 | W | L | t | t | KW | KN | |
| 2 | 7.5 | 650 | 90 | 1800 | 2240 | 3.2 | 13.2 | ||||||||
| 6月18日 | |||||||||||||||
| 10.5 | A5 | 700 | 90 | 1800 | 2240 | 3.2 | 14.5 | ||||||||
| 13.5 | 5/0.85 | 700 | 90 | 2200 | 2640 | 3.2 | 15.5 | ||||||||
| 16.5 | 850 | 90 | 2700 | 3140 | 3.2 | 18.4 | |||||||||
| 19.5 | 950 | 90 | 3100 | 3440 | P | 3.2 | 20.9 | ||||||||
| 22.5 | 950 | 90 | 3800 | 4140 | 22 | 3.2 | 23.1 | ||||||||
| 25.5 | 1150 | 130 | 4500 | 4140 | 3.2 | 25.1 | |||||||||
| 28.5 | 1250 | 130 | 700 | 750 | 5000 | 4840 | 0.2 | 3.2 | 30.1 | ||||||
| 3.2 | 7.5 | 650 | 90 | 1800 | 2240 | 5.15 | 18.8 | ||||||||
| A4/A5 | |||||||||||||||
| 10.5 | 6月18日 | 650 | 90 | 1800 | 2240 | 5.15 | 20.3 | ||||||||
| 13.5 | 800 | 90 | 700 | 750 | 2200 | 2640 | 0.35 | 5.15 | 21.8 | ||||||
| 16.5 | 5/0.85 | 850 | 90 | 2700 | 3140 | 5.15 | 24.5 | ||||||||
| 19.5 | 900 | 90 | 3100 | 3440 | P22 | 5.15 | 25.8 | ||||||||
| 22.5 | 1000 | 90 | 3800 | 4140 | 5.15 | 29.5 | |||||||||
| 25.5 | 1250 | 130 | 700 | 1000 | 3800 | 4280 | 5.55 | 31.2 | |||||||
| 28.5 | 1350 | 130 | 4500 | 4980 | 5.55 | 35.8 | |||||||||
| 5 | 7.5 | 710 | 90 | 1800 | 2240 | 6.05 | 27.1 | ||||||||
| A5 | |||||||||||||||
| 6月18日 | |||||||||||||||
| 5/0.85 | |||||||||||||||
| 10.5 | 760 | 90 | 1800 | 2240 | 6.05 | 29.5 | |||||||||
| 13.5 | 810 | 90 | 2200 | 2640 | P24 | 6.05 | 31.2 | ||||||||
| 16.5 | 960 | 90 | 2700 | 3140 | 0.38 | 6.05 | 35.8 | ||||||||
| 19.5 | 1060 | 90 | 3100 | 3440 | 6.45 | 27.1 | |||||||||
| 22.5 | 1160 | 90 | 3800 | 4280 | 6.45 | 29.4 | |||||||||
| 25.5 | 1290 | 130 | 3800 | 4280 | 6.45 | 31.2 | |||||||||
| 28.5 | 1400 | 130 | 700 | 1000 | 4500 | 4980 | 6.45 | 35.8 | |||||||
| 6.3 | 7.5 | A4/A5 | 760 | 90 | 1800 | 2400 | 11 | 27.1 | |||||||
| 6月18日 | |||||||||||||||
| 10.5 | 5/0.85 | 810 | 90 | 1800 | 2240 | 11 | 56.2 | ||||||||
| 13.5 | 860 | 90 | 2200 | 2640 | 11.4 | 47.5 | |||||||||
| 16.5 | 1010 | 90 | 2700 | 3140 | 11.4 | 51 | |||||||||
| 19.5 | 1110 | 90 | 3100 | 3440 | P24 | 11.4 | 56.2 | ||||||||
| 22.5 | 1210 | 90 | 3800 | 4280 | 11.4 | 47.6 | |||||||||
| 25.8 | 1300 | 130 | 3800 | 4280 | 12.1 | 51 | |||||||||
| 28.5 | 1450 | 130 | 750 | 1000 | 4500 | 4980 | 0.66 | 12.1 | 56.2 | ||||||
| 10 | 7.5 | A4/A5 | 810 | 90 | 1800 | 2240 | 11 | 47.6 | |||||||
| 6月18日 | |||||||||||||||
| 5/0.85 | |||||||||||||||
| 0.66 | |||||||||||||||
| 10.5 | 1010 | 90 | 1800 | 2280 | 11.4 | 55.2 | |||||||||
| 13.5 | 1110 | 90 | 2200 | 2680 | 11.4 | 58.3 | |||||||||
| 16.5 | 1210 | 90 | 2700 | 3180 | 11.4 | 61.2 | |||||||||
| 19.5 | 1360 | 90 | 3100 | 3580 | 11.4 | 64.4 | |||||||||
| 22.5 | 1460 | 90 | 3800 | 4280 | 12.1 | 69.3 | |||||||||
| 25.5 | 1560 | 130 | 750 | 1000 | 3800 | 4490 | 12.1 | 72.4 | |||||||
| 28.5 | 1700 | 130 | 4500 | 5190 | P24 | 12.4 | 77 | ||||||||
| 12.5 | 7.5 | 950 | 90 | 1800 | 2280 | 18.55 | 62.4 | ||||||||
| A | |||||||||||||||
| 10.5 | 6月18日 | 4/A5 | 1050 | 90 | 1800 | 2280 | 18.55 | 67.3 | |||||||
| 13.5 | 1150 | 90 | 2200 | 2680 | 18.55 | 71 | |||||||||
| 16.5 | 5/0.85 | 1250 | 90 | 2700 | 3180 | 18.55 | 74.3 | ||||||||
| 19.5 | 1350 | 90 | 3100 | 3580 | P30 | 18.55 | 78.2 | ||||||||
| 22.5 | 1450 | 90 | 3800 | 4280 | 0.71 | 18.55 | 83.5 | ||||||||
| 25.5 | 1650 | 130 | 3800 | 4490 | 19.35 | 87.4 | |||||||||
| 28.5 | 1750 | 130 | 750 | 1000 | 4500 | 5190 | 19.35 | 94.2 | |||||||